Casa indipendente in vendita

Mogliano Veneto, Via Marconi
€ 650.000
4 locali 4 locali
185 Mq 185 Mq
3 bagni 3 bagni

Casa indipendente in vendita

Mogliano Veneto, Via Marconi

Descrizione annuncio

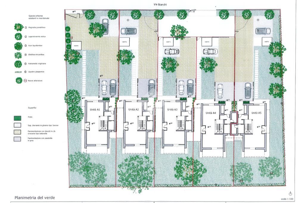
Mogliano Veneto, immerse nel verde della campagna veneta, circondate dalle più importanti ville storiche della zona e adiacenti al grande parco Fondazione Boldini, verranno realizzate le Residenze Bianchi con finiture di lusso e dagli elevati standard tecnologici e funzionali, lontane dal traffico cittadino ma ben collegate con il centro di Mogliano Veneto anche da piste ciclopedonali di recente realizzazione.

L’abitazione è sviluppata su due livelli ed è così composta: al piano terra ampia zona living con soggiorno, sala da pranzo, porticato con giardino di proprietà esclusiva con impianto di irrigazione e ala gocciolante, oltre ai servizi e locali tecnici; al primo piano, camera matrimoniale con bagno e cabina armadio, terrazza esclusiva pavimentata in legno, due camere singole con bagno in comune.

Verrà installata una pompa di calore ad inverter per il riscaldamento (a pavimento) e la produzione di acqua calda sanitaria, installato l'impianto di condizionamento con unità esterna e unità interne del tipo canalizzate e l'impianto di ventilazione meccanica per il ricircolo dell'aria interna e recupero di calore.

Sarà presente, inoltre, l'impianto fotovoltaico in copertura, la predisposizione per montare un piccolo ascensore e per ricarica auto elettrica.

L'immobile verrà consegnato finito entro ottobre 2025.

Per maggiori informazioni sul capitolato, contattare la filiale di zona. Saremo lieti di rispondere alle vostre domande.

Mostra tutto

Nelle vicinanze

Trasporto pubblico Trasporto pubblico
stazione di Mogliano Veneto
stazione di Mogliano Veneto
150 m
Trasporto pubblico
150 m
Scuole Scuole
Scuola primaria G.B.Piranesi
300 m
Scuole
400 m
Asilo comunale Lilliput
480 m
Scuola primaria Dante Alighieri
690 m
Scuola secondaria I grado Toti dal Monte
820 m
Farmacia Farmacia
Farmacia al Terraglio
50 m
Farmacia Villa
170 m
Farmacia alla Marca
460 m
Farmacia alla Madonetta
930 m
Farmacia San Marco
950 m
Ospedali Ospedali
Ospedali
2,8 Km
Supermercati Supermercati
Despar
240 m
Maxi
330 m
Cadoro Superstore
440 m
Eurospin
520 m
Supermercato Cadoro
930 m
Negozi Negozi
maxy market
330 m
Negozi
360 m
Panificio Falcon
440 m
Maggiotto Abbigliamento
590 m
Bar Bar
Bar capriccio
90 m
Buffet Sweet Shop
160 m
La Tavernetta Di Hong Jie
190 m
Caffè al Teatro
250 m
Bar Cocolouco
270 m
Ristoranti Ristoranti
Ristorante Beccofino
90 m
Ristorante / Pizzeria ai Portici
150 m
Trattoria Ai Veneziani
200 m
Pizzeria ai Bersaglieri
250 m
Al Bacareto
510 m
Mostra tutto

Caratteristiche

Rif.:
60999124
Piano:
2 di 2 (Piano su più livelli)
Terrazzi:
1
Camere da letto:
3
Arredamento:
Assente
Condizionamento:
Predisposizione impianto
Mostra tutto
Prezzo Prezzo
€ 650.000
Rata mutuo Rata mutuo
€ 3.063 / mese
Proponi il tuo prezzoProponi il tuo prezzo

Classe Energetica

A4
A4
A4
A4
A4
A4
A4
A4
A4
EP globale non rinnovabile:
0.00 kW h/m² anno
EP globale rinnovabile:
0.00 kW h/m² anno
EP invernale del fabbricato:
EP estiva del fabbricato:
Anno di costruzione:
2024
Riscaldamento:
Autonomo
Tipo impianto:
A pavimento
Tipo alimentazione:
Pannelli

Ti interessa visionare l'immobile?

Fissa un appuntamento  Fissa un appuntamento

Richiedi informazioni

Clicca su Leggi per aprire l'informativa
* Questi campi sono obbligatori

Calcola il tuo mutuo

Semplice e senza impegno
Anticipo

( % )
Mutuo

( % )

pochi semplici passi

inserisci i tuoi dati
Questionario completato
Grazie per aver richiesto un appuntamento senza impegno con un nostro Consulente del Credito e Assicurativo.

Hai inserito correttamente tutti i dati necessari e a breve riceverai una e-mail con un link da convalidare per inviare i tuoi dati.
Affiliato
Studio Mogliano Sas
Via G.Marconi, 35 31021 Mogliano Veneto (TV)

Il nostro staff


  • Valter Bassetto
    Affiliato

  • Federica Favaro
    Coordinatrice

  • Mary Nicastri
    Affiliata

  • Kevin De Biasi
    Collaboratore

  • Daniele Lachin
    Collaboratore

  • Marco Mascarelli
    Collaboratore

  • Filippo Pietrobon
    Collaboratore
Via G.Marconi, 35 31021 Mogliano Veneto (TV)
Zona: Mogliano Veneto
Mostra su mappa
Orari: Lunedì - Venerdì dalle 09.00 alle 12.30 e dalle 14.30 alle 19.30; Sabato dalle 09.00 alle 12.30 su appuntamento.
Affiliato
Studio Mogliano Sas
Via G.Marconi, 35 31021 Mogliano Veneto (TV)

2026 Tecnocasa Franchising S.p.A. - P. IVA 08365160152 - Via Monte Bianco 60/A 20089 Rozzano (MI). Ogni agenzia ha un proprio titolare ed è autonoma. Privacy policy | Policy utilizzo | Cookie policy