Villa a schiera in vendita

Mogliano Veneto, Via Olme
€ 280.000
4 locali 4 locali
155 Mq 155 Mq
3 bagni 3 bagni

Villa a schiera in vendita

Mogliano Veneto, Via Olme

Descrizione annuncio

In tranquilla zona residenziale semi-centrale di Mogliano Veneto Est, proponiamo IN ESCLUSIVA una porzione di schiera centrale, ideale per chi è alla ricerca di spazi comodi e ben distribuiti.

L’abitazione, ristrutturata nel 2005, si presenta in buono stato di manutenzione ed è caratterizzata da un’ottima luminosità grazie alla doppia esposizione est–ovest.

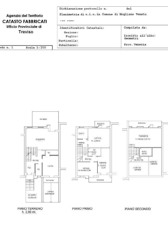
Al piano terra l’ingresso conduce a un soggiorno di circa 26 mq, affiancato da una cucina abitabile con accesso al terrazzino esposto a ovest, perfetto per momenti di relax all’aperto. Completa il piano un bagno di servizio. Salendo al primo piano troviamo la zona notte composta da una camera matrimoniale con terrazzo esposto a est, una camera singola con terrazzo a ovest, una camera doppia con soppalco, e due bagni finestrati, uno con vasca e uno con doccia, comodi e ben rifiniti.

All’ultimo livello si sviluppa una mansarda di circa 25 mq con terrazzo, uno spazio versatile che può essere utilizzato come studio, stanza hobby o ulteriore camera. Al piano interrato l’immobile dispone di un garage doppio di 34 mq e di una taverna con cucina.

La casa è dotata di riscaldamento autonomo, aria condizionata e predisposizione per l’impianto di allarme. Nel 2024 è stata sostituita la caldaia e nel 2025 è stata installata una stufa a pellet.

Le finiture includono gres nella zona giorno e parquet nella zona notte, serramenti con vetrocamera e oscuri in legno.

La posizione è strategica, con fermata dell’autobus a pochi minuti a piedi e parco e supermercato facilmente raggiungibili.

Mostra tutto

Nelle vicinanze

Trasporto pubblico Trasporto pubblico
stazione di Mogliano Veneto
stazione di Mogliano Veneto
1,7 Km
Trasporto pubblico
180 m
Scuole Scuole
Scuola primaria Olme
140 m
Scuola dell'Infanzia Arcobaleno
390 m
Scuola primaria Anna Frank
470 m
Scuola Media Umberto Saba
980 m
Liceo Giuseppe Berto
1,1 Km
Farmacia Farmacia
Farmacia alla Madonetta
650 m
Farmacia al Terraglio
1,6 Km
Farmacia San Marco
1,6 Km
Farmacia Villa
1,6 Km
Farmacia alla Marca
2,0 Km
Ospedali Ospedali
Ospedali
1,2 Km
Supermercati Supermercati
Alì
260 m
Il Baule
710 m
Lidl
720 m
Supermercato Cadoro
850 m
Coop
1,1 Km
Negozi Negozi
maxy market
1,3 Km
Negozi
1,3 Km
Maggiotto Abbigliamento
1,3 Km
Panificio Falcon
2,0 Km
Bar Bar
Cincinbar
810 m
Dapino
980 m
L'oasi bar
1,3 Km
Bar Lo Spuntino
1,4 Km
La Tavernetta Di Hong Jie
1,5 Km
Ristoranti Ristoranti
Pizza Biz betica
640 m
Pizzeria Barbanera
670 m
al messicano
760 m
Trattoria, pizzeria da Renzo 'All'Oasi'
1,3 Km
Pizzeria ai Bersaglieri
1,4 Km
Mostra tutto

Caratteristiche

Rif.:
61164423
Piano:
Su più livelli di 4
Totale piani:
4
Box:
1
Terrazzi:
3
Camere da letto:
3
Mostra tutto
Prezzo Prezzo
€ 280.000
Rata mutuo Rata mutuo
€ 1.308 / mese
Proponi il tuo prezzoProponi il tuo prezzo
Immobile valutato con T·Valuta

Classe Energetica

E
E
E
E
E
E
E
E
E
EP globale non rinnovabile:
137.83 kW h/m² anno
EP globale rinnovabile:
1.54 kW h/m² anno
EP invernale del fabbricato:
EP estiva del fabbricato:
Anno di costruzione:
1979
Riscaldamento:
Autonomo
Tipo impianto:
A radiatori
Tipo alimentazione:
Metano

Ti interessa visionare l'immobile?

Fissa un appuntamento  Fissa un appuntamento

Richiedi informazioni

Clicca su Leggi per aprire l'informativa
* Questi campi sono obbligatori

Calcola il tuo mutuo

Semplice e senza impegno
Anticipo

( % )
Mutuo

( % )

pochi semplici passi

inserisci i tuoi dati
Questionario completato
Grazie per aver richiesto un appuntamento senza impegno con un nostro Consulente del Credito e Assicurativo.

Hai inserito correttamente tutti i dati necessari e a breve riceverai una e-mail con un link da convalidare per inviare i tuoi dati.
Affiliato
Studio Mogliano Sas
Via G.Marconi, 35 31021 Mogliano Veneto (TV)

Il nostro staff


  • Valter Bassetto
    Affiliato

  • Federica Favaro
    Coordinatrice

  • Mary Nicastri
    Affiliata

  • Kevin De Biasi
    Collaboratore

  • Daniele Lachin
    Collaboratore

  • Marco Mascarelli
    Collaboratore

  • Filippo Pietrobon
    Collaboratore
Via G.Marconi, 35 31021 Mogliano Veneto (TV)
Zona: Mogliano Veneto
Mostra su mappa
Orari: Lunedì - Venerdì dalle 09.00 alle 12.30 e dalle 14.30 alle 19.30; Sabato dalle 09.00 alle 12.30 su appuntamento.
Affiliato
Studio Mogliano Sas
Via G.Marconi, 35 31021 Mogliano Veneto (TV)

2026 Tecnocasa Franchising S.p.A. - P. IVA 08365160152 - Via Monte Bianco 60/A 20089 Rozzano (MI). Ogni agenzia ha un proprio titolare ed è autonoma. Privacy policy | Policy utilizzo | Cookie policy