Quadrilocale in vendita

Scorzè, Via Ravagnan Luigi - Peseggia-Gardigiano
€ 320.000
4 locali 4 locali
105 Mq 105 Mq
2 bagni 2 bagni

Quadrilocale in vendita

Scorzè, Via Ravagnan Luigi - Peseggia-Gardigiano

Descrizione annuncio

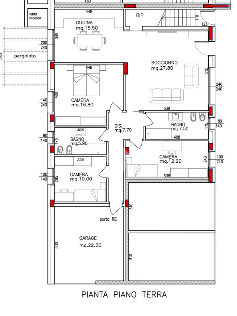
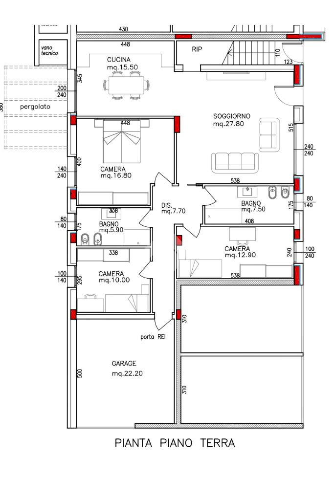
A Gardigiano di Scorzè proponiamo in vendita una porzione al piano terra situata in un elegante contesto residenziale composto da sole tre unità completamente indipendenti.

L’appartamento, sviluppato su circa 105 mq, accoglie con un ingresso che conduce a una luminosa zona giorno open space di 44 mq. La zona notte comprende una camera matrimoniale, due camere singole e due bagni finestrati, uno dotato di vasca e l’altro di doccia.

La proprietà include un garage di 22 mq collegato direttamente all’abitazione e un posto auto esterno.

L’immobile dispone inoltre di uno scoperto esclusivo sui lati nord e sud, con predisposizione per installare un pergolato, ideale per godersi spazi all’aperto in totale privacy.

Le finiture previste comprendono gres porcellanato nella zona giorno e parquet nella zona notte, mentre serramenti, portefinestre e scorrevoli saranno in PVC con triplo vetro camera e tapparelle elettriche. L’abitazione sarà dotata di riscaldamento a pavimento, impianto fotovoltaico da 3 kW, pompa di calore e predisposizione per aria condizionata e impianto d’allarme.

L’esterno sarà rifinito con cappotto termico da 14 cm per un elevato comfort energetico.

La consegna è prevista per giugno 2026 e, trattandosi di un immobile in fase di costruzione, c’è la possibilità di personalizzare le finiture secondo le proprie preferenze.

La posizione è particolarmente comoda: l’Ospedale All’Angelo di Mestre si raggiunge in dieci minuti, mentre gli aeroporti di Venezia e Treviso distano circa diciotto minuti. Il complesso si trova inoltre a tre chilometri dal casello “Scorzè–Martellago”, a cinque minuti dalla stazione ferroviaria di Mogliano Veneto e nelle vicinanze dei principali centri commerciali della zona.

I render sono a scopo illustrativo.

Mostra tutto

Nelle vicinanze

Trasporto pubblico Trasporto pubblico
stazione di Mogliano Veneto
stazione di Mogliano Veneto
2,7 Km
Trasporto pubblico
310 m
Gatta Protagora
Gatta Protagora
2,7 Km
Scuole Scuole
Scuole
150 m
Scuola secondaria I grado Toti dal Monte
2,0 Km
Scuola primaria Dante Alighieri
2,1 Km
Farmacia Farmacia
Farmacia Dott Giovanna Bortignon
960 m
Farmacia alla Marca
2,4 Km
Farmacia Villa
2,8 Km
Farmacia al Terraglio
2,9 Km
Farmacia Viale
3,0 Km
Ospedali Ospedali
Ospedali
1,4 Km
Supermercati Supermercati
SuperM
310 m
Cadoro
2,4 Km
Eurospin
2,5 Km
Despar
2,6 Km
Supermercati
2,8 Km
Negozi Negozi
Panificio Gomiero
300 m
Panificio Gomiero Emiliano
1,1 Km
Panificio Falcon
2,4 Km
Bar Bar
Bar Aurora
310 m
Ludmilla bar
330 m
Bar Alle Stelle
2,4 Km
Bar Cocolouco
2,6 Km
Buffet Sweet Shop
2,7 Km
Ristoranti Ristoranti
Pizzeria Asporto Arcobaleno
320 m
Osteria da Giovanni
1,5 Km
Ristorante I Savi
2,3 Km
Al Vecio Mulin
2,4 Km
Osteria al Turbine
2,5 Km
Mostra tutto

Caratteristiche

Rif.:
61142488
Piano:
Terra con giardino di 2
Totale piani:
2
Box:
1
Camere da letto:
3
Arredamento:
Assente
Mostra tutto
Prezzo Prezzo
€ 320.000
Rata mutuo Rata mutuo
€ 1.508 / mese
Proponi il tuo prezzoProponi il tuo prezzo

Classe Energetica

A4
A4
A4
A4
A4
A4
A4
A4
A4
EP globale non rinnovabile:
1.00 kW h/m² anno
EP globale rinnovabile:
1.00 kW h/m² anno
EP invernale del fabbricato:
EP estiva del fabbricato:
Anno di costruzione:
2025
Riscaldamento:
Autonomo
Tipo impianto:
A pavimento
Tipo alimentazione:
Pannelli

Ti interessa visionare l'immobile?

Fissa un appuntamento  Fissa un appuntamento

Richiedi informazioni

Clicca su Leggi per aprire l'informativa
* Questi campi sono obbligatori

Calcola il tuo mutuo

Semplice e senza impegno
Anticipo

( % )
Mutuo

( % )

pochi semplici passi

inserisci i tuoi dati
Questionario completato
Grazie per aver richiesto un appuntamento senza impegno con un nostro Consulente del Credito e Assicurativo.

Hai inserito correttamente tutti i dati necessari e a breve riceverai una e-mail con un link da convalidare per inviare i tuoi dati.
Affiliato
Studio Mogliano Sas
Via G.Marconi, 35 31021 Mogliano Veneto (TV)

Il nostro staff


  • Valter Bassetto
    Affiliato

  • Federica Favaro
    Coordinatrice

  • Mary Nicastri
    Affiliata

  • Kevin De Biasi
    Collaboratore

  • Daniele Lachin
    Collaboratore

  • Marco Mascarelli
    Collaboratore

  • Filippo Pietrobon
    Collaboratore
Via G.Marconi, 35 31021 Mogliano Veneto (TV)
Zona: Mogliano Veneto
Mostra su mappa
Orari: Lunedì - Venerdì dalle 09.00 alle 12.30 e dalle 14.30 alle 19.30; Sabato dalle 09.00 alle 12.30 su appuntamento.
Affiliato
Studio Mogliano Sas
Via G.Marconi, 35 31021 Mogliano Veneto (TV)

2026 Tecnocasa Franchising S.p.A. - P. IVA 08365160152 - Via Monte Bianco 60/A 20089 Rozzano (MI). Ogni agenzia ha un proprio titolare ed è autonoma. Privacy policy | Policy utilizzo | Cookie policy