Villa a schiera in vendita

Scorzè, Via Moglianese Gardigiano - Peseggia-Gardigiano
€ 360.000
4 locali 4 locali
130 Mq 130 Mq
2 bagni 2 bagni

Villa a schiera in vendita

Scorzè, Via Moglianese Gardigiano - Peseggia-Gardigiano

Descrizione annuncio

Scorzè – Gardigiano Porzione di villa a schiera di nuova costruzione

A Gardigiano di Scorzè proponiamo in vendita una porzione di villa a schiera attualmente in fase di realizzazione, con consegna prevista per la fine del 2026.

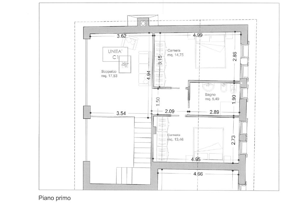
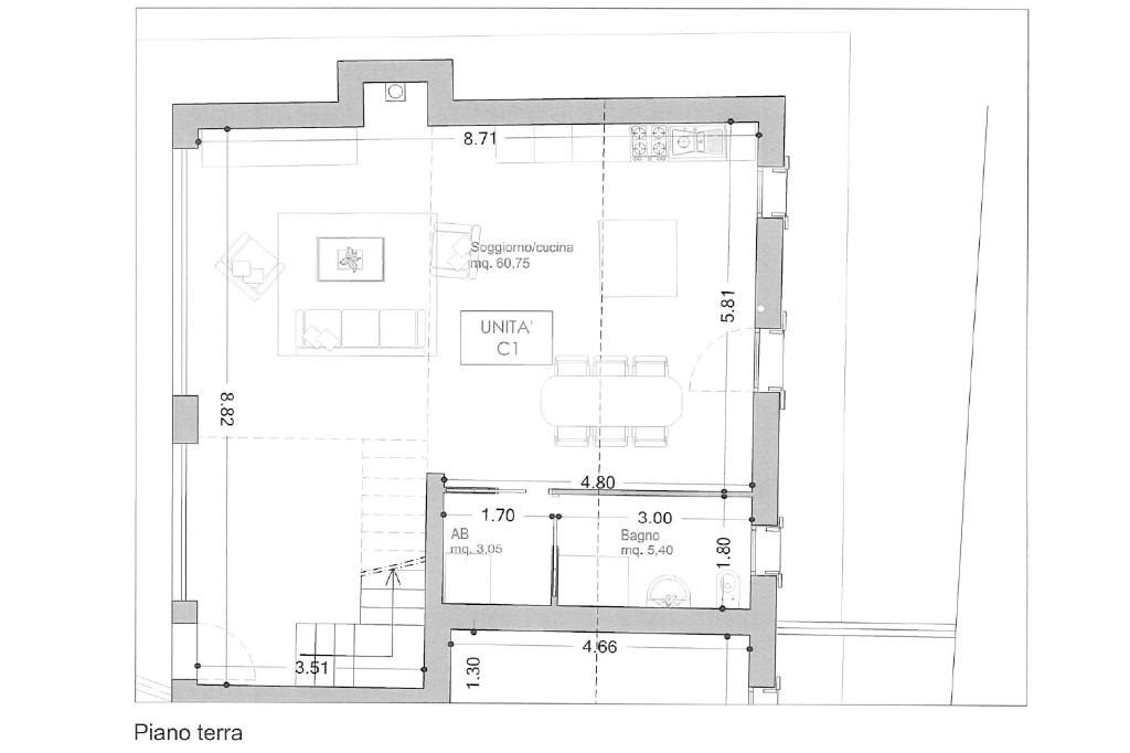
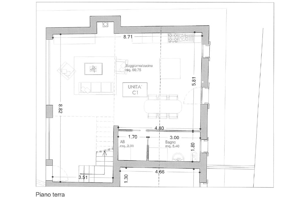
L’abitazione si sviluppa su due livelli: al piano terra si trova la zona giorno di 60 mq con soggiorno e cucina open-space, oltre a un antibagno e bagno. Al primo piano la zona notte comprende due spaziose camere da letto, una terza camera pluriuso soppalcata e un bagno.

Completano la proprietà uno scoperto privato di circa 170 mq, un garage, due posti auto uno coperto e l'altro scoperto.

Le finiture previste includono pavimentazione in gres nella zona giorno e parquet nella zona notte, infissi in triplo vetrocamera e zanzariere, riscaldamento a pavimento, impianto fotovoltaico, climatizzazione con pompa di calore, aria condizionata canalizzata, oscuranti motorizzati, sistema d’allarme volumetrico e perimetrale e cappotto esterno per un’elevata efficienza energetica, predisposizione per un caminetto.

La villa è situata in una zona residenziale tranquilla, a 1 minuto dalla fermata dell’autobus, 500 metri dai negozi del centro di Peseggia e a soli 5 minuti da Mogliano Veneto.

I render sono a scopo illustrativo.

Mostra tutto

Nelle vicinanze

Trasporto pubblico Trasporto pubblico
Trasporto pubblico
200 m
Martellago
Martellago
2,6 Km
Ricariche auto elettriche Ricariche auto elettriche
Cimitero di Cappella | EnelX
2,8 Km
Scuole Scuole
Scuole
260 m
Farmacia Farmacia
Farmacia Dott Giovanna Bortignon
200 m
Ospedali Ospedali
Ospedali
240 m
Distretto Sociosanitario Martellago
2,6 Km
Supermercati Supermercati
SuperM
1,1 Km
Rossit
2,4 Km
Prix
2,6 Km
Negozi Negozi
Panificio Gomiero Emiliano
70 m
Panificio Gomiero
980 m
Panificio/Pasticceria da Ettore Cagnin
2,9 Km
Bar Bar
Bar Aurora
1,1 Km
Ludmilla bar
1,1 Km
Gelateria Chocolat
2,8 Km
Bar Nuovo di Valerio e Marisa
3,0 Km
Ristoranti Ristoranti
Pizzeria Asporto Arcobaleno
900 m
Ristorante I Savi
1,3 Km
Osteria da Giovanni
2,2 Km
Pizzeria trattoria La Fornace
2,5 Km
Agriturismo da Merlo
2,8 Km
Mostra tutto

Caratteristiche

Rif.:
61135738
Piano:
Su più livelli di 2
Totale piani:
2
Posti auto:
1
Camere da letto:
2
Arredamento:
Assente
Mostra tutto
Prezzo Prezzo
€ 360.000
Rata mutuo Rata mutuo
€ 1.681 / mese
Proponi il tuo prezzoProponi il tuo prezzo

Classe Energetica

A4
A4
A4
A4
A4
A4
A4
A4
A4
EP globale non rinnovabile:
1.00 kW h/m² anno
EP globale rinnovabile:
1.00 kW h/m² anno
EP invernale del fabbricato:
EP estiva del fabbricato:
Anno di costruzione:
2024
Riscaldamento:
Autonomo
Tipo impianto:
A pavimento
Tipo alimentazione:
Pannelli

Ti interessa visionare l'immobile?

Fissa un appuntamento  Fissa un appuntamento

Richiedi informazioni

Clicca su Leggi per aprire l'informativa
* Questi campi sono obbligatori

Calcola il tuo mutuo

Semplice e senza impegno
Anticipo

( % )
Mutuo

( % )

pochi semplici passi

inserisci i tuoi dati
Questionario completato
Grazie per aver richiesto un appuntamento senza impegno con un nostro Consulente del Credito e Assicurativo.

Hai inserito correttamente tutti i dati necessari e a breve riceverai una e-mail con un link da convalidare per inviare i tuoi dati.
Affiliato
Studio Mogliano Sas
Via G.Marconi, 35 31021 Mogliano Veneto (TV)

Il nostro staff


  • Valter Bassetto
    Affiliato

  • Federica Favaro
    Coordinatrice

  • Mary Nicastri
    Affiliata

  • Kevin De Biasi
    Collaboratore

  • Daniele Lachin
    Collaboratore

  • Marco Mascarelli
    Collaboratore

  • Filippo Pietrobon
    Collaboratore
Via G.Marconi, 35 31021 Mogliano Veneto (TV)
Zona: Mogliano Veneto
Mostra su mappa
Orari: Lunedì - Venerdì dalle 09.00 alle 12.30 e dalle 14.30 alle 19.30; Sabato dalle 09.00 alle 12.30 su appuntamento.
Affiliato
Studio Mogliano Sas
Via G.Marconi, 35 31021 Mogliano Veneto (TV)

2026 Tecnocasa Franchising S.p.A. - P. IVA 08365160152 - Via Monte Bianco 60/A 20089 Rozzano (MI). Ogni agenzia ha un proprio titolare ed è autonoma. Privacy policy | Policy utilizzo | Cookie policy