Villa a schiera in vendita

Scorzè, Via Moglianese Gardigiano - Peseggia-Gardigiano
€ 330.000
4 locali 4 locali
130 Mq 130 Mq
2 bagni 2 bagni

Villa a schiera in vendita

Scorzè, Via Moglianese Gardigiano - Peseggia-Gardigiano

Descrizione annuncio

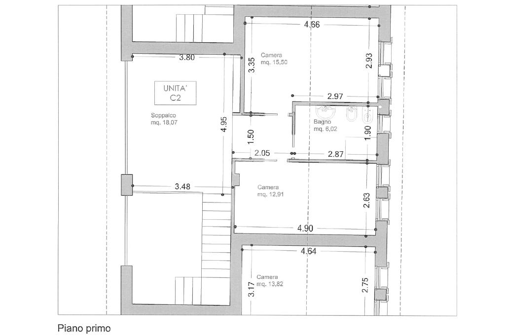
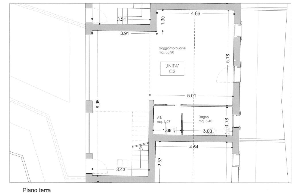
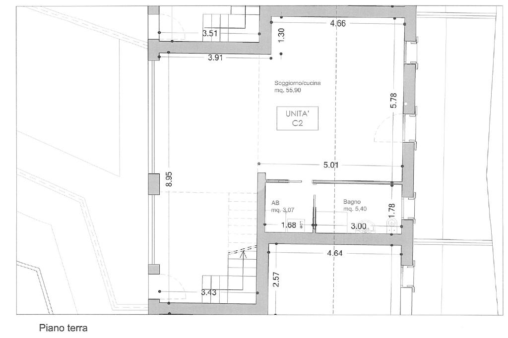
Scorzè – Gardigiano Porzione di villa a schiera di nuova costruzione

A Gardigiano di Scorzè proponiamo in vendita una porzione di villa a schiera attualmente in fase di realizzazione, con consegna prevista per la fine del 2026.

L’abitazione si sviluppa su due livelli. Al piano terra si trova la zona giorno di 55 mq con soggiorno e cucina open-space, oltre ad antibagno e bagno. Al primo piano la zona notte comprende due ampie camere da letto, una terza camera pluriuso soppalcata e un bagno.

Completano la proprietà uno scoperto privato di circa 75 mq, un garage, due posti auto uno coperto e l'altro scoperto.

Le finiture previste includono pavimentazione in gres nella zona giorno e parquet nella zona notte, infissi in triplo vetrocamera e zanzariere, riscaldamento a pavimento, impianto fotovoltaico, climatizzazione con pompa di calore, aria condizionata canalizzata, oscuranti motorizzati, sistema d’allarme volumetrico e perimetrale e cappotto esterno per un’elevata efficienza energetica.

La posizione è residenziale e comoda ai servizi: a 1 minuto dalla fermata dell’autobus, 500 metri dai negozi del paese e 5 minuti da Mogliano Veneto.

I render sono a scopo illustrativo.

Mostra tutto

Nelle vicinanze

Trasporto pubblico Trasporto pubblico
Trasporto pubblico
200 m
Martellago
Martellago
2,6 Km
Ricariche auto elettriche Ricariche auto elettriche
Cimitero di Cappella | EnelX
2,8 Km
Scuole Scuole
Scuole
260 m
Farmacia Farmacia
Farmacia Dott Giovanna Bortignon
200 m
Ospedali Ospedali
Ospedali
240 m
Distretto Sociosanitario Martellago
2,6 Km
Supermercati Supermercati
SuperM
1,1 Km
Rossit
2,4 Km
Prix
2,6 Km
Negozi Negozi
Panificio Gomiero Emiliano
70 m
Panificio Gomiero
980 m
Panificio/Pasticceria da Ettore Cagnin
2,9 Km
Bar Bar
Bar Aurora
1,1 Km
Ludmilla bar
1,1 Km
Gelateria Chocolat
2,8 Km
Bar Nuovo di Valerio e Marisa
3,0 Km
Ristoranti Ristoranti
Pizzeria Asporto Arcobaleno
900 m
Ristorante I Savi
1,3 Km
Osteria da Giovanni
2,2 Km
Pizzeria trattoria La Fornace
2,5 Km
Agriturismo da Merlo
2,8 Km
Mostra tutto

Caratteristiche

Rif.:
61135754
Piano:
Su più livelli di 2
Totale piani:
2
Posti auto:
1
Camere da letto:
2
Arredamento:
Assente
Mostra tutto
Prezzo Prezzo
€ 330.000
Rata mutuo Rata mutuo
€ 1.541 / mese
Proponi il tuo prezzoProponi il tuo prezzo

Classe Energetica

A4
A4
A4
A4
A4
A4
A4
A4
A4
EP globale non rinnovabile:
1.00 kW h/m² anno
EP globale rinnovabile:
1.00 kW h/m² anno
EP invernale del fabbricato:
EP estiva del fabbricato:
Anno di costruzione:
2024
Riscaldamento:
Autonomo
Tipo impianto:
A pavimento
Tipo alimentazione:
Pannelli

Ti interessa visionare l'immobile?

Fissa un appuntamento  Fissa un appuntamento

Richiedi informazioni

Clicca su Leggi per aprire l'informativa
* Questi campi sono obbligatori

Calcola il tuo mutuo

Semplice e senza impegno
Anticipo

( % )
Mutuo

( % )

pochi semplici passi

inserisci i tuoi dati
Questionario completato
Grazie per aver richiesto un appuntamento senza impegno con un nostro Consulente del Credito e Assicurativo.

Hai inserito correttamente tutti i dati necessari e a breve riceverai una e-mail con un link da convalidare per inviare i tuoi dati.
Affiliato
Studio Mogliano Sas
Via G.Marconi, 35 31021 Mogliano Veneto (TV)

Il nostro staff


  • Valter Bassetto
    Affiliato

  • Federica Favaro
    Coordinatrice

  • Mary Nicastri
    Affiliata

  • Kevin De Biasi
    Collaboratore

  • Daniele Lachin
    Collaboratore

  • Marco Mascarelli
    Collaboratore

  • Filippo Pietrobon
    Collaboratore
Via G.Marconi, 35 31021 Mogliano Veneto (TV)
Zona: Mogliano Veneto
Mostra su mappa
Orari: Lunedì - Venerdì dalle 09.00 alle 12.30 e dalle 14.30 alle 19.30; Sabato dalle 09.00 alle 12.30 su appuntamento.
Affiliato
Studio Mogliano Sas
Via G.Marconi, 35 31021 Mogliano Veneto (TV)

2026 Tecnocasa Franchising S.p.A. - P. IVA 08365160152 - Via Monte Bianco 60/A 20089 Rozzano (MI). Ogni agenzia ha un proprio titolare ed è autonoma. Privacy policy | Policy utilizzo | Cookie policy