Porzione di bifamiliare in vendita

Scorzè, Via Ragagnan - Peseggia-Gardigiano
€ 420.000
Prezzo aggiornato
4 locali 4 locali
130 Mq 130 Mq
3 bagni 3 bagni

Porzione di bifamiliare in vendita

Scorzè, Via Ragagnan - Peseggia-Gardigiano

Descrizione annuncio

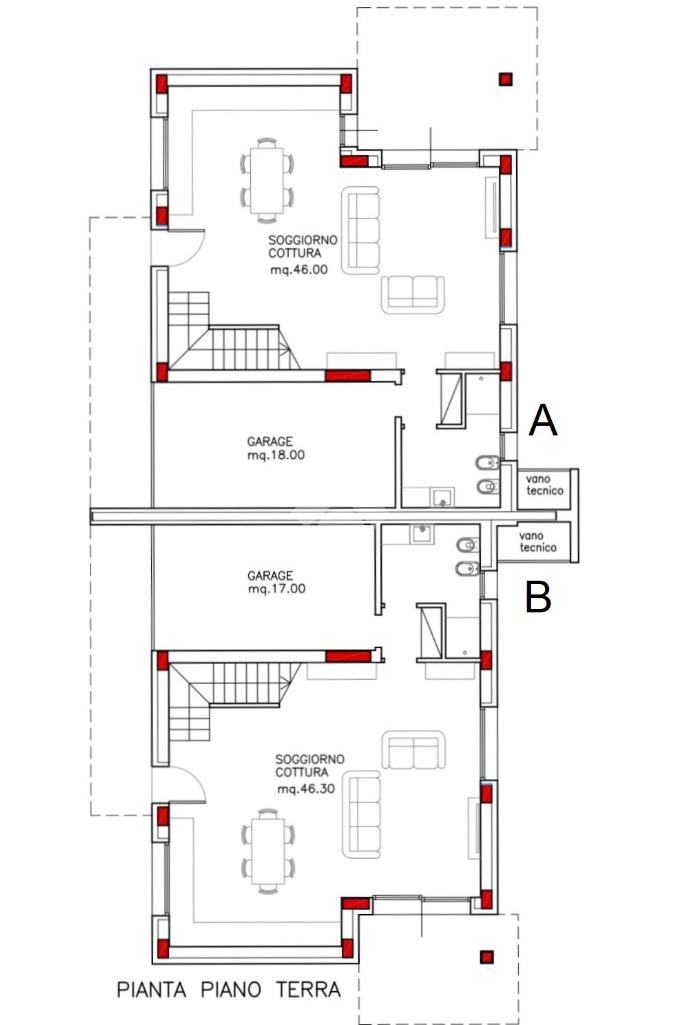
SCORZE’ GARDIGIANO, proponiamo in vendita porzione di bifamiliare disposta su due livelli.

Il piano terra è composto da un’ampia e luminosa zona giorno con soggiorno più cucina in open space di 46 mq più un bagno e accesso diretto al garage di proprietà di 17 mq più il vano tecnico.

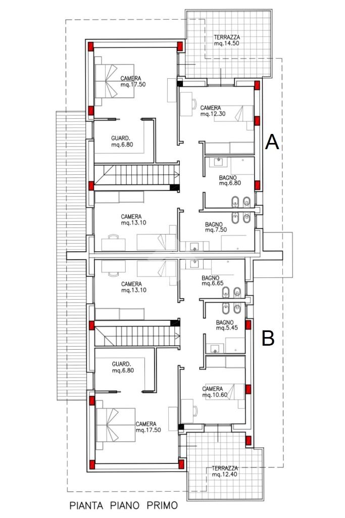
La zona notte è presente al primo piano ed è composta da una spaziosa camera matrimoniale di 17 mq e munita di guardaroba, due camere singole e due bagni finestrati rispettivamente con vasca e doccia. Dalla camera matrimoniale e da una delle due singole si ha accesso ad una terrazza di 12 mq. Completa la soluzione un posto auto scoperto e una porzione di scoperto privato.

La pavimentazione sarà in zona giorno in gres porcellanato mentre in zona notte in parquet, gli infissi, le porte finestre e gli alzanti scorrevoli saranno in triplo vetro camera e PVC con l’aggiunta di tapparelle elettriche.

La soluzione sarà dotata di riscaldamento a pavimento, impianto fotovoltaico 3KW, sarà prevista l’installazione di un sistema in pompa di calore, la predisposizione sia di aria condizionata e impianto d’allarme, la muratura esterna verrà rivestita con l’applicazione del cappotto di 14 cm.

Fine lavori previsti per giugno 2026. E’ possibile personalizzare le finiture dell’immobile essendo in fase di realizzazione secondo le proprie preferenze e nel rispetto del capitolato previsto.

Il complesso dista 10 minuti dall’Ospedale all’Angelo di Mestre, 18 minuti dall’aeroporto Marco Polo e da quello di Treviso e a 3 Km dall’uscita “Scorzè-Martellago” del passante autostradale.

Inoltre, è a 5 minuti dalla stazione dei treni di Mogliano Veneto che collega Venezia e Treviso e a 10 minuti dai più importanti centri commerciali della zona.

Mostra tutto

Nelle vicinanze

Trasporto pubblico Trasporto pubblico
Trasporto pubblico
170 m
Scorzè Ceccariolo
Scorzè Ceccariolo
230 m
Ricariche auto elettriche Ricariche auto elettriche
Moniego Centro | EnelX
2,2 Km
Scuole Scuole
Scuole
150 m
Farmacia Farmacia
Farmacia San Benedetto
330 m
Farmacia San Giovanni
2,8 Km
Supermercati Supermercati
Eurospesa
570 m
Supermercati
3,0 Km
Negozi Negozi
Bertoldo Confezioni
450 m
Pasaoli Verde
1,2 Km
Panificio/Pasticceria da Ettore Cagnin
3,0 Km
Bar Bar
Prince Pub
2,8 Km
Bar Nuovo di Valerio e Marisa
3,0 Km
Ristoranti Ristoranti
Mydo's Ristorante Pizzeria
560 m
Locanda San Ferdinando
1,1 Km
Ristorante Perbacco
1,2 Km
Ristorante Al Grion
2,7 Km
La brace dei nottambuli
3,0 Km
Mostra tutto

Caratteristiche

Rif.:
61142618
Piano:
Su più livelli di 2
Totale piani:
2
Box:
1
Terrazzi:
1
Camere da letto:
3
Mostra tutto
Prezzo Prezzo
€ 420.000
Rata mutuo Rata mutuo
€ 1.979 / mese
Proponi il tuo prezzoProponi il tuo prezzo

Classe Energetica

A4
A4
A4
A4
A4
A4
A4
A4
A4
EP globale non rinnovabile:
1.00 kW h/m² anno
EP globale rinnovabile:
1.00 kW h/m² anno
EP invernale del fabbricato:
EP estiva del fabbricato:
Anno di costruzione:
2025
Riscaldamento:
Autonomo
Tipo impianto:
A pavimento
Tipo alimentazione:
Pannelli

Prezzo ridotto di €1 (2%%)

Ti interessa visionare l'immobile?

Fissa un appuntamento  Fissa un appuntamento

Richiedi informazioni

Clicca su Leggi per aprire l'informativa
* Questi campi sono obbligatori

Calcola il tuo mutuo

Semplice e senza impegno
Anticipo

( % )
Mutuo

( % )

pochi semplici passi

inserisci i tuoi dati
Questionario completato
Grazie per aver richiesto un appuntamento senza impegno con un nostro Consulente del Credito e Assicurativo.

Hai inserito correttamente tutti i dati necessari e a breve riceverai una e-mail con un link da convalidare per inviare i tuoi dati.
Affiliato
Studio Mogliano Sas
Via G.Marconi, 35 31021 Mogliano Veneto (TV)

Il nostro staff


  • Valter Bassetto
    Affiliato

  • Federica Favaro
    Coordinatrice

  • Mary Nicastri
    Affiliata

  • Kevin De Biasi
    Collaboratore

  • Daniele Lachin
    Collaboratore

  • Marco Mascarelli
    Collaboratore

  • Filippo Pietrobon
    Collaboratore
Via G.Marconi, 35 31021 Mogliano Veneto (TV)
Zona: Mogliano Veneto
Mostra su mappa
Orari: Lunedì - Venerdì dalle 09.00 alle 12.30 e dalle 14.30 alle 19.30; Sabato dalle 09.00 alle 12.30 su appuntamento.
Affiliato
Studio Mogliano Sas
Via G.Marconi, 35 31021 Mogliano Veneto (TV)

2026 Tecnocasa Franchising S.p.A. - P. IVA 08365160152 - Via Monte Bianco 60/A 20089 Rozzano (MI). Ogni agenzia ha un proprio titolare ed è autonoma. Privacy policy | Policy utilizzo | Cookie policy